$249,000
Call Now: 501-450-2835
Remarks
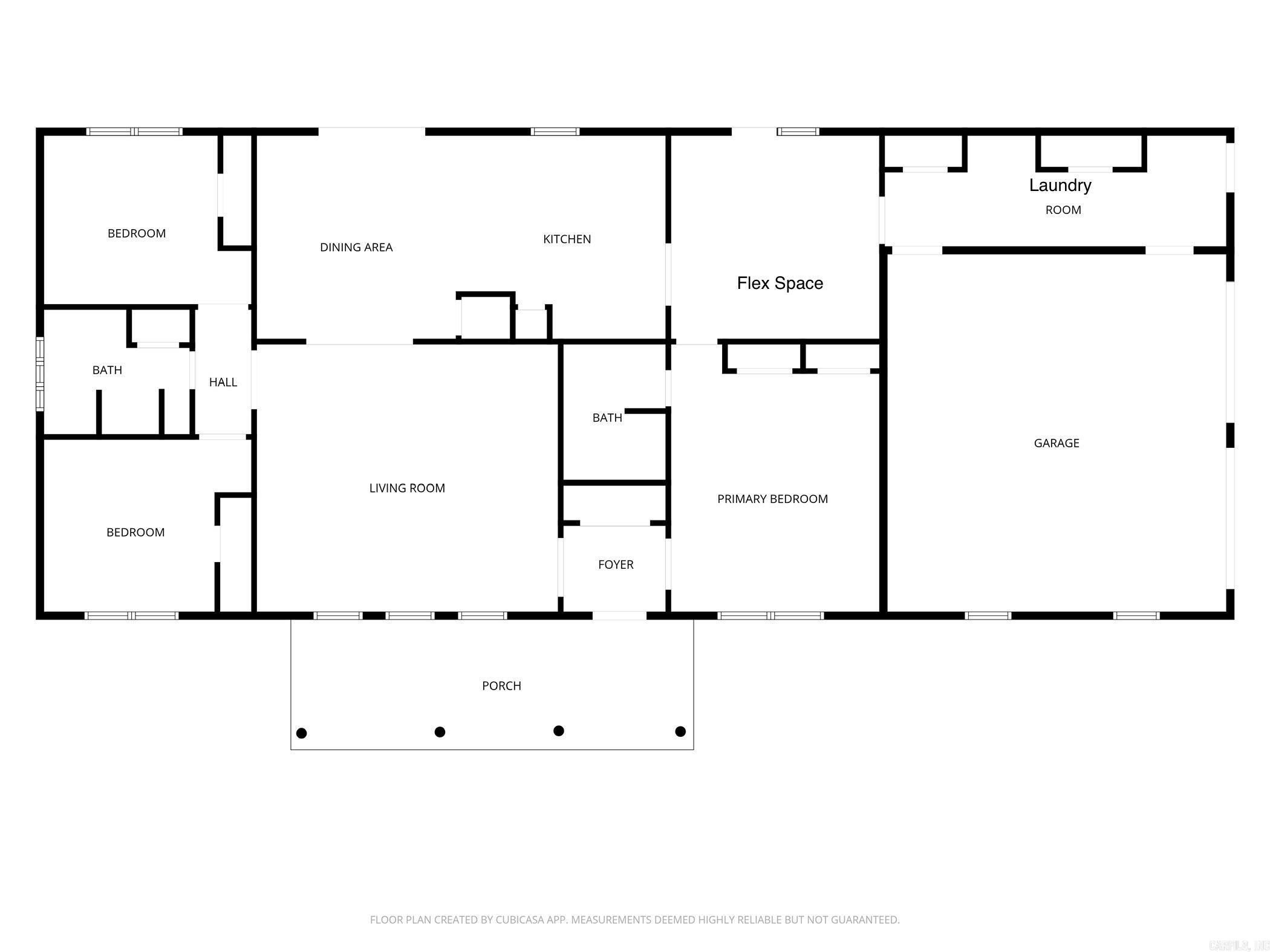
Just Listed! This spacious country home offers over 2,000 square feet of living space on a rural 1-acre lot. Featuring 3 bedrooms & 2 full bathrooms—both with double vanities, one with a convenient step-in shower. You'll love the expansive, open-concept living room and the dedicated dining area off the kitchen, large enough to accommodate any size table. The kitchen also includes a breakfast bar, ample cabinet space. All-tile flooring—there’s zero carpet throughout the home. A generously sized laundry/utility room includes built-in closets for extra storage. Toward the back of the home, you'll find a versatile bonus room—perfect for home office, gym, playroom, or anything else you can imagine. The split floor plan offers added privacy, while outdoor living is maximized with a classic country-style front porch & a full-length covered back porch—ideal for relaxing or entertaining. The fenced backyard is great for pets, but you’ll still enjoy spacious front & back yard beyond the fence. Additional features:2-car garage*Brand new windows across the front for scenic views*Roof replaced 6 years ago*HVAC system only 3 years old This property truly offer the the best of country living.
Features
Patio
Porch
Partially Fenced
Chain Link
Washer Connection
Dryer Connection-Electric
Water Heater-Gas
Ceiling Fan(s)
Walk-in Shower
Breakfast Bar
Kit Counter-Formica
Map
This data up-to-date as of November 05, 2025 time - 01:40 AM. For the most current information, contact Rowlett Realty Inc., 501-450-2835, rhonda@cyberback.com. This data is updated daily. Some properties which appear for sale on this web site may subsequently have sold and may no longer be available.
The data relating to real estate for sale on this web site comes in part from the Broker Reciprocity (SM) Program of the Cooperative Arkansas REALTORS® Multiple Listing Services, Inc. Real estate listings held by brokerage firms other than Studio 11 Productions are marked with the Broker Reciprocity (SM) logo and information about them includes the name of the listing brokers. Broker Reciprocity (SM) information is provided exclusively for consumers' personal, non-commercial use and may not be used for any purpose other than to identify prospective properties consumers may be interested in purchasing.
Information deemed reliable but not guaranteed. Listing broker has attempted to offer accurate data, but buyers are advised to confirm all items.
Copyright © 2002 - 2025 Cooperative Arkansas REALTORS® Multiple Listing Services, Inc. All rights reserved.