$229,000
Call Now: 501-450-2835
Remarks
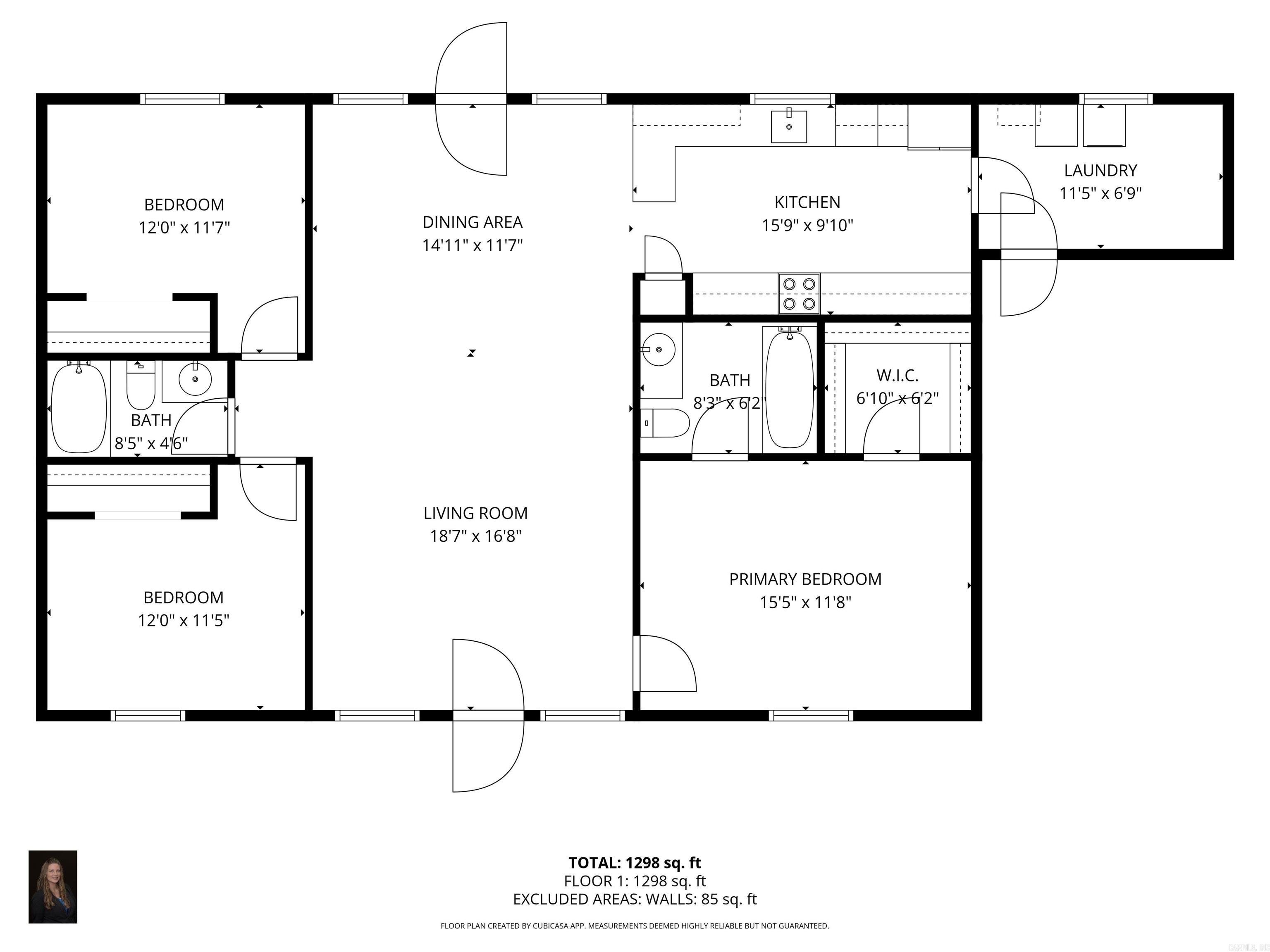
This inviting 3-bedroom, 2-bath brick home offers comfort, updates & plenty of space to enjoy. Inside, you’ll find ceramic tile flooring throughout, a bright & functional kitchen with a new sink, and updated features including new ceiling fans, a new water heater, a new blower & updated thermostat for the central heat and air. The home also boasts a new roof for peace of mind. Step outside to your own backyard retreat featuring an in-ground pool, perfect for relaxing or entertaining. A new privacy fence is currently being installed, adding even more appeal to the outdoor space. Conveniently located inside city limits, this property combines modern upgrades with everyday convenience.
Features
Patio
Porch
Partially Fenced
Outside Storage Area
Inground Pool
Guttering
Wood Fence
Washer Connection
Dryer Connection-Electric
Water Heater-Electric
Window Treatments
Floored Attic
Walk-In Closet(s)
Ceiling Fan(s)
Breakfast Bar
Kit Counter-Formica
This data up-to-date as of October 06, 2025 time - 06:45 AM. For the most current information, contact Rowlett Realty Inc., 501-450-2835, rhonda@cyberback.com. This data is updated daily. Some properties which appear for sale on this web site may subsequently have sold and may no longer be available.
The data relating to real estate for sale on this web site comes in part from the Broker Reciprocity (SM) Program of the Cooperative Arkansas REALTORS® Multiple Listing Services, Inc. Real estate listings held by brokerage firms other than Studio 11 Productions are marked with the Broker Reciprocity (SM) logo and information about them includes the name of the listing brokers. Broker Reciprocity (SM) information is provided exclusively for consumers' personal, non-commercial use and may not be used for any purpose other than to identify prospective properties consumers may be interested in purchasing.
Information deemed reliable but not guaranteed. Listing broker has attempted to offer accurate data, but buyers are advised to confirm all items.
Copyright © 2002 - 2025 Cooperative Arkansas REALTORS® Multiple Listing Services, Inc. All rights reserved.
