$799,000
Call Now: 501-450-2835
Remarks
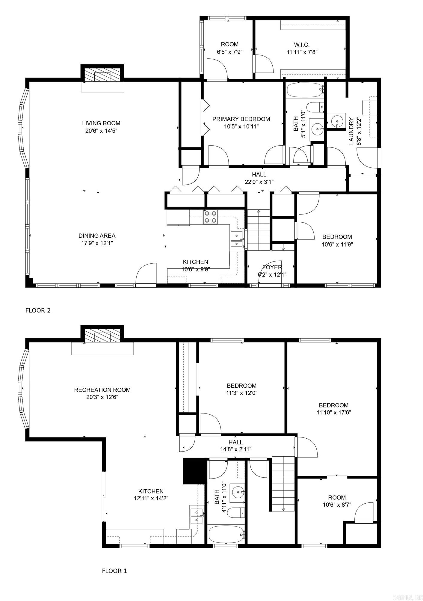
Check out this unique opportunity to own a lake house with acreage on Lake Hamilton. A beautiful covered boat dock has additional concrete boardwalks and walkways to maximize your lake fun. The large yard leading to the lake has a gentle slope allowing for yard games or the addition of a stunning pool. 112 Spurwink is a 4 bed/ 2 bath fixer upper with 2 kitchens a 2 entertaing spaces that has been partially demoed to see its potential. Both living areas are full of windows to bring the picturesque lake views front and center. There is a 2 car garage attached -- plus, an oversized, extra tall 3-vehicle carport for parking RVs, boats, etc. The expansive 1.12 acres allows for additional building site(s) or room for a garden. Make your appointment for a private tour today!
Features
Patio
Deck
Seawall
Covered Patio
Washer Connection
Washer-Stays
Dryer Connection-Electric
Dryer-Stays
Water Heater-Gas
Whirlpool/Hot Tub/Spa
Walk-In Closet(s)
Walk-in Shower
Breakfast Bar
Kit Counter- Granite Slab
Low-E Windows
Tankless Water Heater
This data up-to-date as of April 28, 2026 time - 09:02 AM. For the most current information, contact Rowlett Realty Inc., 501-450-2835, rhonda@cyberback.com. This data is updated daily. Some properties which appear for sale on this web site may subsequently have sold and may no longer be available.
The data relating to real estate for sale on this web site comes in part from the Broker Reciprocity (SM) Program of the Cooperative Arkansas REALTORS® Multiple Listing Services, Inc. Real estate listings held by brokerage firms other than Studio 11 Productions are marked with the Broker Reciprocity (SM) logo and information about them includes the name of the listing brokers. Broker Reciprocity (SM) information is provided exclusively for consumers' personal, non-commercial use and may not be used for any purpose other than to identify prospective properties consumers may be interested in purchasing.
Information deemed reliable but not guaranteed. Listing broker has attempted to offer accurate data, but buyers are advised to confirm all items.
Copyright © 2002 - 2026 Cooperative Arkansas REALTORS® Multiple Listing Services, Inc. All rights reserved.